王工銷往云南SCR11-500干式變壓器歷程
文章來源:北京創聯匯通電氣 ????? 發布時間: 2019-06-26 10:22:15
導讀:王工銷往云南SCR11-500干式變壓器歷程 今年三月份的一天韋總通過電話和我取得聯系需要一臺SCR11-500/10的變壓器,通過溝通了解需求和要求給韋總報了價格和產品工藝韋總對我們質量大家
王工銷往云南SCR11-500干式變壓器歷程

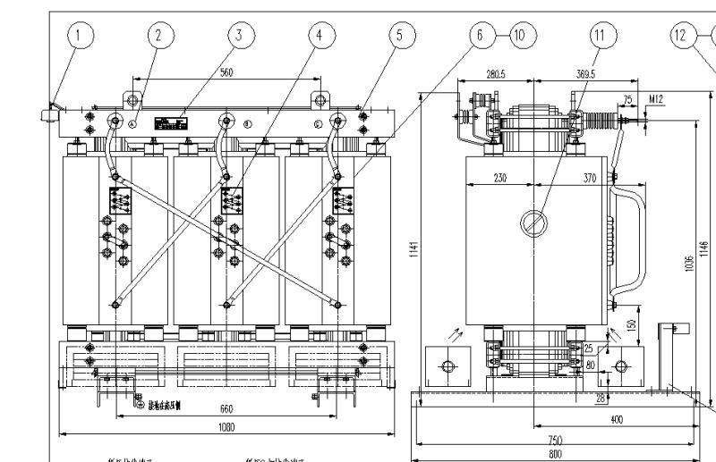
今年三月份的一天韋總通過電話和我取得聯系需要一臺SCR11-500/10的變壓器,通過溝通了解需求和要求給韋總報了價格和產品工藝韋總對我們質量大家贊賞說和我們合作不會錯的,因為項目周期較長所以當時定不下來我這邊也是耐心的等待韋總通知,四月低的時候韋總需要建設基礎基臺可是怕到時候變壓器和基礎施工無法安裝,這個問題我立即讓技術做出來變壓器和外殼的基礎尺寸圖,讓韋總按照基礎施工圖施工絕對沒問題的,隨后韋總也讓他們技術與我取得聯系確認軌距通過溝通軌距沒有問題,因為還有現成的配電柜通過溝通解決了接線口出線位置的問題,隨后與韋總擬定合同修改合同然后簽訂合同然后匯定金,我這邊安排生產韋總發貨前提前給打招呼自己好安排尾款接貨。



上一篇:魏宏濤發往山東SG隔離變壓器見證 ????? 下一篇:王建果銷往安徽安慶 TDGC-5KVA調壓器



